时间:2010-10-08更新时间:2010-10-08
如果您想了解我们的产品,可以随时拨打我公司的销售热线或点击下方按钮在线咨询价格!
立即拨打电话享更多优惠:0371-67772626
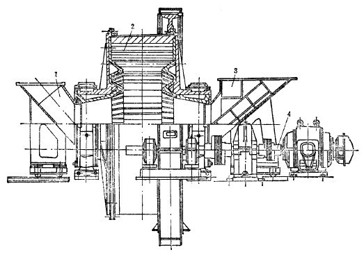
干式自磨机由给矿漏斗部,筒体部,传动部,排矿漏斗部,基础部及润滑装置等组成。

干式自磨机和球磨机其结构特点
1、筒体的径长比大,筒体短,中空轴颈短,通常筒体直径为其长度的三倍左右,这样可使物料容易给入和易于分级,缩短物料在磨机中滞留的时间,并阻止其轴向析离现象的产生,从而提高磨机的生产能力和强化磨碎过程的选择性。
2、筒体直径D与筒体长度L之间两者的比值D/L直接影响着磨机的生产率,据试验发现D/L值不一,范围很宽,介于2-4.66之间,且D/L值随筒径的增大而加大。

3、端盖与筒体垂直,其上有两圈环状的波峰衬板,实践证明,装不装波峰衬板差别很显著,装有波峰衬板时,磨机生产率可以提高,而能量消耗大幅度降低,同时产品粒度较细,也没有偏析现象产生,波峰衬板为三角形断面,为了使波峰衬板对矿石产生足够的侧向反击作用,两端盖上波峰衬板顶端间的距离不应大于0.8L。
4、筒体上除敷有平衬板外,还每隔一定距离敷有一定高度的丁字提升提升衬板,它的主要作用是在筒体转体时把物料提升到一定得高度而抛落,从而使被粉碎物料获得足够的,比球磨机大得能量产生冲击作用,是大块物料被粉碎,提升衬板的高度和间距对物料的运动轨迹有很大的影响,实验表明,提升衬板高度在一定范围以内时,随着提升板高度的增加,磨机生产率逐渐增加而功率消耗明显下降,合适高度的提升板与没提升版的情况下,两者的功耗相差将近一倍,而且提升班的间距与提升板的提升高度两者的比值在4左右时,才能获得高的生产能力和低的能量消耗。
上一篇:干式自磨原理
下一篇:矿石自磨与砾磨工艺技术及设备